Lo sentimos, pero necesita habilitar JavaScript para navegar por este sitio.
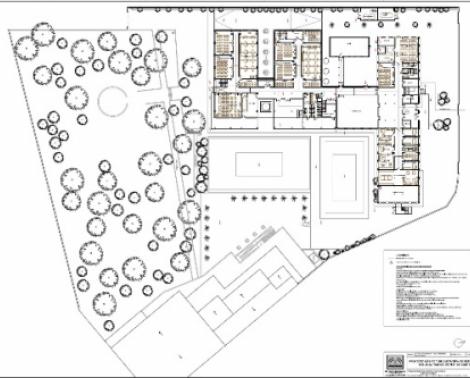
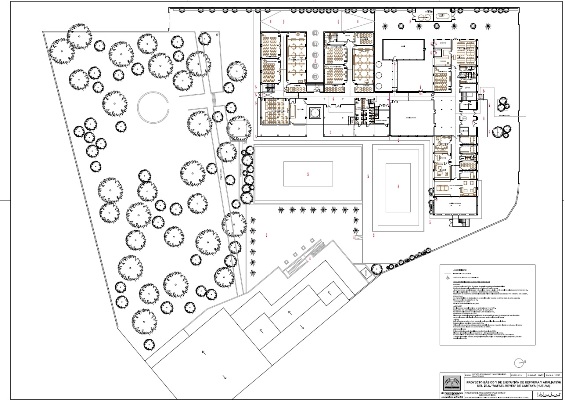
  • Plano de las obras de ampliación y reforma del IES Rafael Reyes de Cartaya
    Educación invierte 3 millones de euros en ampliar y reformar el IES Rafael Reyes de Cartaya
    La Consejería de Educación, a través del Ente Público Andaluz de Infraestructuras y Servicios Educativos (ISE Andalucía), llevará a cabo esta actuación que permitirá al centro acoger a más de 800 alumnos y alumnas
    Plano de las obras de ampliación y reforma del IES Rafael Reyes de Cartaya
28/12/2011
La Consejería de Educación, a través del Ente Público Andaluz de Infraestructuras y Servicios Educativos (ISE Andalucía), ha licitado las obras de ampliación y reforma del Instituto de Educación Secundaria (IES) Rafael Reyes de Cartaya, Huelva. Esta actuación, a la que se han presentado un total de 59 empresas interesadas en ejecutar la obra, tiene un presupuesto de licitación de 3.286.269,96 , y un plazo previsto de realización de 10 meses. La intervención consistirá en la reforma del edificio principal actual, la construcción de un nuevo edificio de dos plantas y el derribo del edificio de planta baja anexo al salón de actos.En la planta baja del edificio matriz se remodelará la zona administrativa (secretaría, dirección, jefatura de estudios y conserjería), la sala de profesorado, la sala de orientación, los seminarios, la biblioteca, un aula de audiovisuales, la fototeca, los espacios para instalaciones y los aseos a la vez que se creará un nuevo despacho para la Asociación de Madres y Padres de Alumnos (AMPA) y otro para los grupos estudiantiles. En la planta alta se reformarán 12 aulas polivalentes, dos departamentos, los aseos y el almacén.El edificio de nueva creación albergará, en su planta baja, un aula de informática, dos aulas polivalentes, una sala de apoyo a la integración, un aula taller, tres seminarios, un aula para el Ciclo Formativo de Gestión Administrativa, un aula para el Ciclo Formativo de Comercio, cafetería, aseos de alumnado y personal no docente y porche cubierto. Por su parte, en su planta alta se ubicarán cinco aulas polivalentes, dos destinadas a música/dramaturgia/audiovisual, otras dos aulas para Educación Plástica y Visual, una de informática, otra de Dibujo y un aula taller. Además se crearán dos salas de apoyo a la integración, tres seminarios y un núcleo de aseos para alumnado.La construcción de este edificio se realizará antes de demoler el actual edificio de planta baja anexionado al edificio principal, y que está situado a continuación del Salón de Actos. Éste espacio se mantendrá como articulación entre el edificio principal y el de nueva planta.Después de la intervención, el centro dispondrá de las instalaciones necesarias para acoger a 840 alumnos y alumnas, y contará con 4.832,66 m construidos sobre una parcela de 16.400 m. De ese total el nuevo edificio supondrá la creación de 1.406,50 m nuevos. Asimismo, estas obras permitirán suprimir las barreras arquitectónicas tanto en el exterior del recinto como en el interior de los edificios, y dotar al centro de las instalaciones necesarias de voz, datos y electricidad para el uso de las nuevas tecnologías (centro TIC).La actuación se enmarca dentro del Plan Mejor Escuela que la Consejería de Educación, a través del Ente Público Andaluz de Infraestructuras y Servicios Educativos (ISE Andalucía), desarrolla en nuestra comunidad autónoma para solventar las necesidades educativas alertadas.