Lo sentimos, pero necesita habilitar JavaScript para navegar por este sitio.
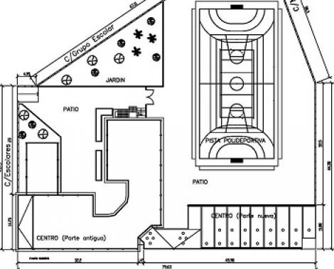
  • Emplazamiento del CEIP Fuentesantilla de Puente del Río (Adra)
    Educación destina más de 180.000 euros a la mejora del colegio Fuentesantilla en Adra
    La Consejería de Educación, a través del Ente Público Andaluz de Infraestructuras y Servicios Educativos, licita en el marco del Plan OLA las obras de reforma en el CEIP Fuentesantilla de Puente del Río (Adra), que generarán 11 empleos durante su ejecución y beneficiarán a 186 alumnos y alumnas de...
    Emplazamiento del CEIP Fuentesantilla de Puente del Río (Adra)
22/08/2013
La Consejería de Educación, a través del Ente Público Andaluz de Infraestructuras y Servicios Educativos (ISE Andalucía), ha licitado las obras de mejora del Centro de Educación Infantil y Primaria (CEIP) Fuentesantilla en Puente del Río (Adra), incluidas en el Plan de Oportunidades Laborales en Andalucía (Plan OLA). El presupuesto de licitación de esta actuación es de 184.863,41 euros y el plazo de ejecución estimado es de cinco meses. La actuación generará 11 empleos durante su desarrollo y beneficiará a los 186 alumnos y alumnas de este centro.Los trabajos de reforma se centrarán sobre todo en los pasillos, en el gimnasio, en los aseos y en las cubiertas. En concreto, en éstas se reparará el forjado de viguetas, así como los pilares, losa y vigas y se sustituirá por completo la cubierta de la zona nueva. Por otra parte, se reemplazarán los bajantes y se reparará la fachada oeste y sur, saneando el revestimiento y pintando las rejas de las ventanas.También se repararán fisuras y se eliminarán humedades en el interior de la planta baja, pasillo y zona lateral del gimnasio y se sustituirá la instalación de fontanería, así como la carpintería de la ventana en la zona curva.Por otra parte, se reformarán los aseos y se incorporará uno nuevo adaptado para personas con movilidad reducida. Asimismo se realizarán reparaciones puntuales en la instalación de saneamiento exterior y se sustituirá la acometida completa de la red de abastecimiento de la urbanización del centro.Esta actuación se incluye en el Plan de Oportunidades Laborales en Andalucía (Plan OLA) aprobado por el Gobierno andaluz con el objetivo de mejorar las infraestructuras educativas y fomentar el empleo en el sector de la construcción. En la provincia de Almería, el Plan OLA prevé generar en torno a 732 puestos de trabajo mediante la realización de obras en centros educativos. La ejecución de este Plan, que cuenta con cofinanciación del Fondo Europeo de Desarrollo Regional (FEDER) y el Fondo Social Europeo (FSE), se lleva a cabo por la Consejería de Educación a través del Ente Público Andaluz de Infraestructuras y Servicios Educativos (ISE Andalucía).