Lo sentimos, pero necesita habilitar JavaScript para navegar por este sitio.
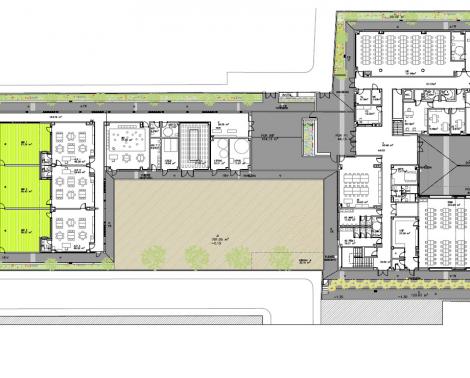
  • Planimetría del nuevo colegio en Las Marinas de Roquetas de Mar (Almería)
    Más de 1,6 millones de euros para el nuevo colegio en Las Marinas de Roquetas de Mar
    La Consejería de Educación, Cultura y Deporte, a través de la Agencia Pública Andaluza de Educación y Formación, ha adjudicado las obras de construcción del nuevo colegio de Las Marinas, en Roquetas de Mar, actuación que generará en torno a 34 puestos de trabajo y creará 300 puestos escolares
    Planimetría del nuevo colegio en Las Marinas de Roquetas de Mar (Almería)
31/10/2014

La Consejería de Educación, Cultura y Deporte, a través la Agencia Pública Andaluza de Educación y Formación, adjudica las obras de la primera fase de construcción de un nuevo Colegio de Educación Infantil y Primaria en Las Marinas de Roquetas de Mar (Almería) con capacidad para 300 niños y niñas. La actuación, que cuenta con un presupuesto de 1.688.811,52 euros y un plazo de ejecución de nueve meses ha sido adjudicada a la empresa Oreco S.A. Estos trabajos, se incluyen dentro del Plan de Oportunidades Laborales en Andalucía (Plan OLA) y permitirán creará entorno a 34 empleos durante su ejecución.

Con estas obras se construirán dos líneas de educación infantil y una línea de educación primaria, con un total de doce unidades. En una segunda fase, se concluirán los espacios necesarios para un centro de tipología C3, con tres líneas de Infantil y Primaria y un total de 675 puestos escolares, mediante la construcción de un patio interior abierto a la zona de juegos, las pistas polideportivas y el resto de unidades educativas hasta completar un total de 27.

En esta primera fase, la entrada principal del edificio conectará el módulo de infantil, con una sola planta, y el módulo de educación primaria, con una planta baja destinada a las zonas comunes y de administración y otra superior donde se ubicarán las aulas. El centro contará, en la zona docente, con seis aulas de infantil con sus aseos incorporados y sus correspondientes aulas exteriores, así como un espacio común para infantil. Asimismo, habrá seis aulas de primaria, un aula de educación especial, aula taller de música y tres aulas de pequeño grupo.

En la zona de administración se ubicarán la sala de profesorado, los despachos de dirección y de jefatura de estudios, sala para la Asociación de Madres y Padres de Alumnos y para el alumnado, secretaría y archivo y conserjería y reprografía. El proyecto prevé también la construcción de la biblioteca, sala de usos múltiples, almacén, cuarto de limpieza, aseos y vestuarios, cuartos de instalaciones, etcétera. El centro contará, asimismo, con comedor, y en la zona exterior habrá zonas de juegos tanto de infantil como primaria, estacionamientos, zona ajardinada y porches cubiertos.

Esta intervención forma parte del Plan de Oportunidades Laborales en Andalucía (Plan OLA) aprobado por el Gobierno andaluz con el objetivo de mejorar las infraestructuras educativas y fomentar el empleo en el sector de la construcción. En la provincia de Almería, el Plan OLA prevé generar en torno a 828 puestos de trabajo mediante la realización de 96 obras en centros educativos. La ejecución de este Plan, que cuenta con cofinanciación del Fondo Europeo de Desarrollo Regional (FEDER) y el Fondo Social Europeo (FSE), se lleva a cabo por la Consejería de Educación, Cultura y Deporte a través de la Agencia Pública Andaluza de Educación y Formación, antiguo Ente Público Andaluz de Infraestructuras y Servicios Educativos (ISE Andalucía).