Lo sentimos, pero necesita habilitar JavaScript para navegar por este sitio.
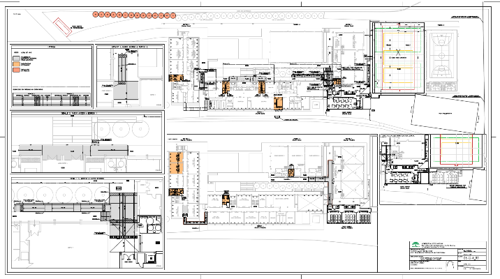
  • Detalle del proyecto de la obras de ampliación del centro.
    Casi 2 millones de euros para la ampliación y reforma del IES Las Fuentezuelas de Jaén
    La Consejería de Educación, a través del Ente Público Andaluz de Infraestructuras y Servicios Educativos (ISE Andalucía), licita estas obras que permitirán ampliar y mejorar las actuales instalaciones de este centro de la capital jienense
    Detalle del proyecto de la obras de ampliación del centro.
29/12/2011
La Consejería de Educación, a través del Ente Público Andaluz de Infraestructuras y Servicios Educativos (ISE Andalucía), ha hecho pública la licitación de las obras de ampliación y mejora del Instituto de Educación Secundaria (IES) Las Fuentezuelas de la capital jienense. La actuación, a la que se han presentado medio centenar de empresas interesadas en ejecutar la obra, cuenta con un presupuesto de licitación de 1.982.984,25 euros y con un plazo previsto de realización de 12 meses.El instituto, que acoge a 1455 alumnos de enseñanzas de Secundaria, Bachillerato y once grupos de Ciclos Formativos, cuenta en la actualidad con cinco edificios independientes ocupados por aularios, talleres y un gimnasio. Tras la intervención, se alzará un nuevo edificio de tres plantas con una pasarela de comunicación que dará accesibilidad a otras dos de las edificaciones existentes que albergan talleres de ciclos formativos.El nuevo espacio contará con una zona de administración, con despacho de orientación, de alumnos, almacén central, aseos-vestuarios de uso no docente y sala de apoyo a la integración, una zona docente, con un aula de informática para Secundaria y otro espacio formativo, con aula técnica y taller de instalaciones para ciclo formativo. En total, sobre una parcela de 17.118,00 m se construirán un total de 834,04.Asimismo se redistribuirán algunos espacios del área destinada a actividad docente en Secundaria y ciclos formativos, con aula de música, aula taller y aula polivalente. Además se construirá una nueva pista deportiva y se mejorarán los núcleos de aseos de los alumnos, el sistema de calefacción y una de las aulas de informática del centro.Esta actuación está cofinanciada por el Fondo Europeo de Desarrollo Regional (FEDER) y se encuentra incluida en el Plan de Oportunidades Laborales en Andalucía (Plan OLA) que el gobierno andaluz aprobó el pasado mes de septiembre para fomentar el empleo entre los parados de la construcción. La ejecución de esta obra se lleva a cabo por la Consejería de Educación a través del Ente Público Andaluz de Infraestructuras y Servicios Educativos (ISE Andalucía) y creará unos 55 nuevos puestos de trabajo.